安詩曼電器
手機:133-6050-3273
微信:133-6050-3273
地址:廣東深圳坪山區青松西路8號鴻合科技園

由于夏季下雨的天氣比較多,空氣濕度大,潮濕的空氣對電器的影響不可小視,不但會造成各種故障,還會大大縮短電器的使用壽命。像電腦、彩電等電器,其電路板上的導電線路較多,特別是電腦,機箱里有主板、顯卡、聲卡等板卡,上面的導電線路密集。在潮濕的空氣里,這些物件上容易附著一些極為細小的水珠,而這些肉眼幾乎看不...
了解詳情
面對梅雨季節來臨如何除濕,如何選擇除濕機,以及使用除濕機的優點方面的知識,安詩曼電器有限公司技術部提供給大家以下建議供參考。如果遇到高溫天氣再加上不期而至的雨水,使不少家庭居室環境悶熱潮濕。特別是在雨天多發的南方,由于空調吹出的是冷風,越除濕會越冷,給
了解詳情
消殺超級細菌變異病毒過氧化氫干霧滅菌機:人類生病的原因是感染了細菌病毒,不管是普通的傷風感冒,還是各種疑難雜癥,具體到最后都是各種細菌病毒引起的。直到現代醫藥科技不斷發展,抗生素的出現讓人類跟細菌病毒的戰斗才取得階段性的勝利。在古代戰爭中因為傷口感染會導致大量的士兵死亡,但是二戰中青霉素的出現,讓傷...
了解詳情
在我們生活中除了常見的灰塵、煙塵之外,在室內空氣中還有很多我們所不易察覺的花粉、煤塵、煙塵以及其他的粉塵,這些粉塵如果過多的吸入人體的話,就會導致呼吸系統出現一些不良反應,特別是敏感體質的人在吸入粉塵后容易引起過敏,空氣凈化器可以有效地吸附凈化灰塵以及各種各樣的可吸入顆粒等等,從而起到很好的預防呼吸...
了解詳情
消失模白模烘干機,模具烘干不開裂技術動態據了解,消失模鑄件具有精度高、質量好,成本低;以及鑄件表面光潔,減少了清理環節,大大節省了機械加工量。為此,消失模鑄造被廣泛應用于鑄鋼、鑄鐵、鑄銅、鑄鋁等各種材質、各種結構的鑄件;采用可發性聚苯乙烯泡沫白模澆注鑄件的工藝過程。泡沫塑料白模在液態金屬澆入時迅速氣...
了解詳情
消失模烘干除濕機,消失模烘干房加熱除濕一體機新聞資訊:近年來,隨著人們環保意識的不斷增強,國家對環保問題的日益重視,對鑄造行業的環保要求也在逐年的提高;毫無疑問,綠色鑄造已成為未來鑄造行業的發展趨勢;那么,什么是
了解詳情
消毒紙巾跟過氧化氫噴霧消毒的區別:去年跟今年的傳染病把整個地球攪和的一塌糊涂,雖然我國控制得當,但是防不勝防,還是有本土患者出現,云南瑞麗、南京這些地方出現的患者就很好的說明了這一點,因此在防范傳染病這上面必須要做好嚴格的防范,不能再出現一次武漢全城封鎖的事情了。大家老老實實的做好防范工作,外出
了解詳情
消毒液霧化機,微米級干霧消毒液霧化器新聞資訊自古以來,人類就與各種傳播疾病的媒介一微生物、細菌、病毒等進行著堅持不懈的斗爭。消毒技術是其中的一種重要手段。消毒效果的好壞,取決于消毒人員、消毒器械、消毒劑(藥液)、消毒的對象四位一體的有機結合。消毒器械是使用藥物殺滅有害生物的重要組成部分,在現代
了解詳情
梅雨季節怎么晾衣服才不會發臭:今天是六一兒童節,時間飛快,2019年一小半就這么過去了,光陰似箭果然說的沒錯。也許今天微信朋友圈里到處都是懷念自己小時候過六一的糗事跟趣事,不過我想大家的印象里肯定不會忘記一件事,那就是小時候過了六一,到了梅雨季節,
了解詳情
每年一到梅雨季節,家里潮的沒法住人。被褥是濕的墻壁是濕的,就連地板都滲出水來,長期在這種環境下,白叟關節開始疼痛,孩子也生出了濕疹,真是讓人糟心。其實呀!仍是你家防水沒有做好。返潮一般是溫度較高的濕潤空氣遇到溫度較低而又光滑不吸水的地上時,易在地上表面發生凝結水。一旦氣候放晴干燥,返潮現象即可消除。...
了解詳情
我國南方氣候比較濕潤,特別是到了梅雨季節,空氣中的濕氣很重,經常可以看到玻璃或者瓷磚上都會有水珠在上面凝結。這種環境下,不管是家具還是衣物這些都比較容易發辮,而且濕度較大還很容易造成點前期設備的老化和故障。除濕機產品其實誕生也有幾十年的歷史了,最早是用于工業除濕,單現在隨著人們的生活需求化,現在家用...
了解詳情
6月,進入梅雨季節,陰雨連綿,偶爾還會下暴雨。如果你身在江南,那一定懂得江南梅雨的纏綿悱惻,也知悉江南雨景的水墨詩意。雖然景色雖美,但是梅雨纏綿,給我們的生活也帶來了A大的困擾。潮濕的室內環境容易導致生活在室內環境中的人出現疲勞、無精打采、濕疹、關節炎、風濕病等亞健康問題,潮濕的環境容易導致室內
了解詳情
梅雨季節木地板如何防潮:一年一度的梅雨季節到了,家里又要開始跟潮濕做斗爭了,不少人只記得自己的衣服還有被褥以及家用電器、家具這些東西需要防潮,但是卻忘記了家里還有一樣東西也是需要防潮的,那就是木地板。木地板現在已經成為很多家庭裝修的首選,畢竟木地板腳感好,裝飾效果突出而且也
了解詳情
很多人不知道面對梅雨季節來臨怎樣除濕,怎樣選擇除濕機,使用除濕機的優點又是什么,我們來看一看。如果遇到高溫加上不期而至的雨水,使不少家庭居室環境悶熱潮濕。特別是在雨天多發的南方,由于空調吹出的是冷風,越除濕會越冷,給人的感覺會相當不舒服。要想徹底擺脫潮熱煩惱,一臺專業除濕機必不可少。專業除濕機一般是...
了解詳情
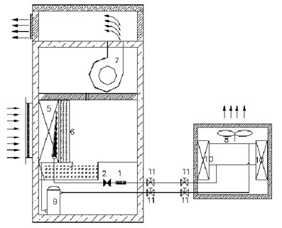
安詩曼ASM-8240G消失模烘干除濕機及安詩曼高配置系列升溫加熱烘干除濕一體機技術參數:安詩曼ASM-8240G消失模烘干除濕機及安詩曼高配置系列升溫加熱烘干除濕一體機可以在消失模烘干過程中快速去除濕氣,有效降低烘干房濕度;通常,只要將烘干房內濕度度控制在30%RH左右;同時保證烘干房內溫度在50...
了解詳情
眾所周知,在國內很多鑄造廠的加工生產中,消失模鑄造工藝的應用是極為廣泛的;據了解,在消失模鑄造中,影響鑄件質量、尺寸精度的因素是多方面的,比如消失模鑄件本身的結構、形狀、大小,泡沫塑料質量的影響,涂料涂層的影響,消失模烘干的影響以及鑄造過程中造型、澆注環節的影響等。在消失模鑄造工藝中,整個工藝流程包...
了解詳情
調溫調濕機溫濕度自動控制技術介紹:調溫調濕機,又叫恒溫恒濕機,或者是恒溫恒濕空調,恒溫恒濕機組,恒溫恒濕系統,名稱有很多,但是功能只有一個,那就是對生產環境的溫度和濕度進行控制,確保溫濕度不會變化,或者是變化不大。這種設備可以制冷也可以制熱,
了解詳情
調溫型除濕機適合高溫環境中使用,在一些溫度變化比較大,溫度比較高的場合下,使用調溫型除濕機的話,對于降低環境內溫度和濕度會有比較顯著和良好的效果,給我們的生產和工作帶來的極大的方便。調溫型除濕機的濕裝置由除濕蛋和承座組成。所謂除濕蛋,就是一種多孔的,透氣較好的的陶瓷外殼,除濕蛋的里面是一個容器,里面...
了解詳情
工業的調溫功能工業上用的除濕機分為調溫式和不調溫式的兩種。現在我們就說說這種調溫式除濕機的功能。工業上用的調溫除濕機有三種類型,一種是通過降溫除濕的,一種是通過升溫除濕的,還有一種是通過調濕除濕的除濕機。先說升溫式的除濕機,這種除濕機里
了解詳情
調溫型除濕機具有自動調控溫濕度的功能,還可以制冷除濕,特別適合用于變化比較大的高溫高濕的環境,能有效降低室內濕度,還可以自動檢測濕度,帶來了很大的便利。1.調溫型除濕機具有多種功能,能適應變化較大的高溫高濕的環境。調溫型除濕機能自動調溫、降溫除濕功能,
了解詳情